84 An Sruthan Beag, Clonakilty, Co. Cork P85W598
84 An Sruthan Beag, Clonakilty, Co. Cork P85W598
Type
Detached House
Status
Sale Agreed
BEDROOMS
4
BATHROOMS
3
Size
186.55sq. m
BER
BER No: 119088292
EPI: 30.22










































Description
With construction almost complete, No. 84 is a beautiful 4 bedroom detached home c. 2024 Sqft. A clever layout with plenty storage space, under floor heating and mechanical ventilation with heat recovery will ensure great economy and comfort. Flooring, tiling, painting, kitchens, appliances are complete and a fully floored attic gives this fantastic `A2` rated home great practicality. Externally is as impressive with an attractive facade, limestone patio to rear and a base fitted for shed (with power supply). Situated where the town meets country, An Sruthán Beag is the ideal residential location, just 1 mile from Clonakilty town centre and a short drive to Inchydoney and surrounding beaches.
• A-rated house with 10 year Homebond structural Guarantee
• Under floor heating with economical air to water heat pump
• Ventilation system fitted within the house ensuring regular fresh air
• Extensive quality finish includes kitchen appliances, fitted kitchen, tiling, bathrooms complete, flooring, painting, remote control electric fireplace and even bathroom mirrors
• External features including, limestone patio to rear, base fitted for shed (with power supply), painting externally
• Fully floored attic, easy to walk around in and fold down attic stairs access
• Spacious landscaped green spaces
• Within an 8 minute drive is the beach at Inchydoney, West Cork Technology Park, Long Strand and the walks at Castlefreke
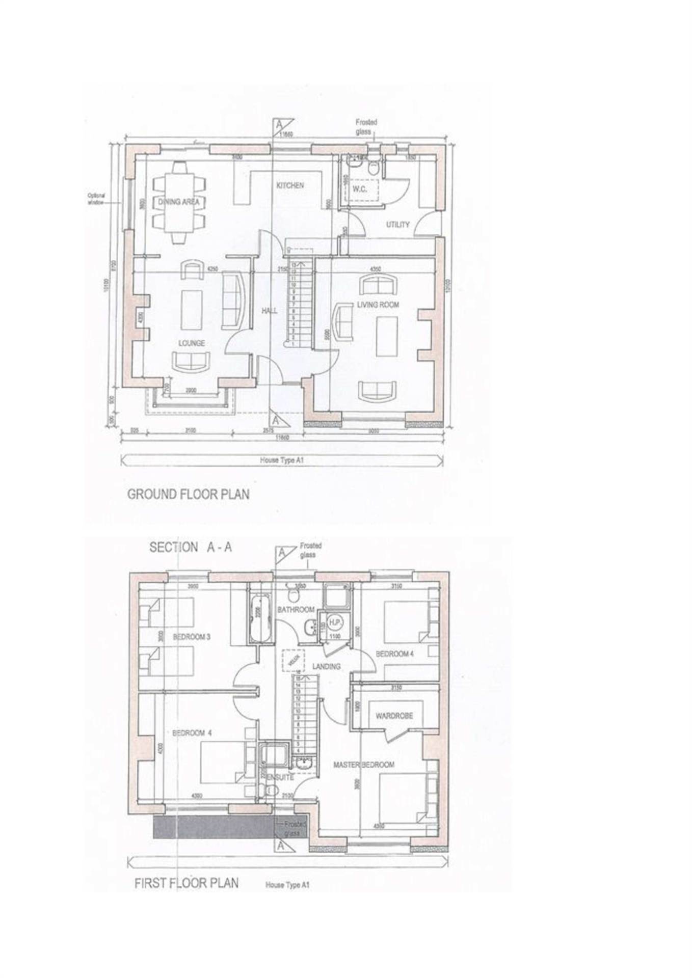
Accommodation c. 188 m²/ 2024 Sqft
Hall 2.15 m x 4.3 m
Lounge Area 4.3 m x 4.3 m
Kitchen / Dining Area 7.4 m x 3.6 m
Utility Room 1.85 x 1.55 m
WC 1.5 m x 1 m
Living Room 4.35 m x 5.5 m
Stairs to first floor
Master bedroom 4.35 x 3.8m
Walk in Wardrobe 3.15 m x 1.6 m
Ensuite 2.1 m x 2.2 m
Bedroom Two 4.3 m x 4 m
Bedroom Three 3.95 m x 3.9 m
Bathroom 3.65 m x 2.2 m
Bedroom Four 3.15 m x 3.6 m
Features
- `An Struthán Beag`, is an ideal residential location, just 1 mile from Clonakilty town centre
- 2024 Sqft with everything you would want in a modern 4 bedroom detached house
- Turnkey ready to walk into home
Floorplan
Clonakilty Neighbourhood Guide
Explore other properties and sales history in Clonakilty.
